‟同意事項”に戻る
閲覧は同意事項承諾の方に限ります
ページを再読込し、最新情報をご覧ください
■内見・購入相談 予約制
事前予約により土日祝可
3/17 価格改定(引下げ)
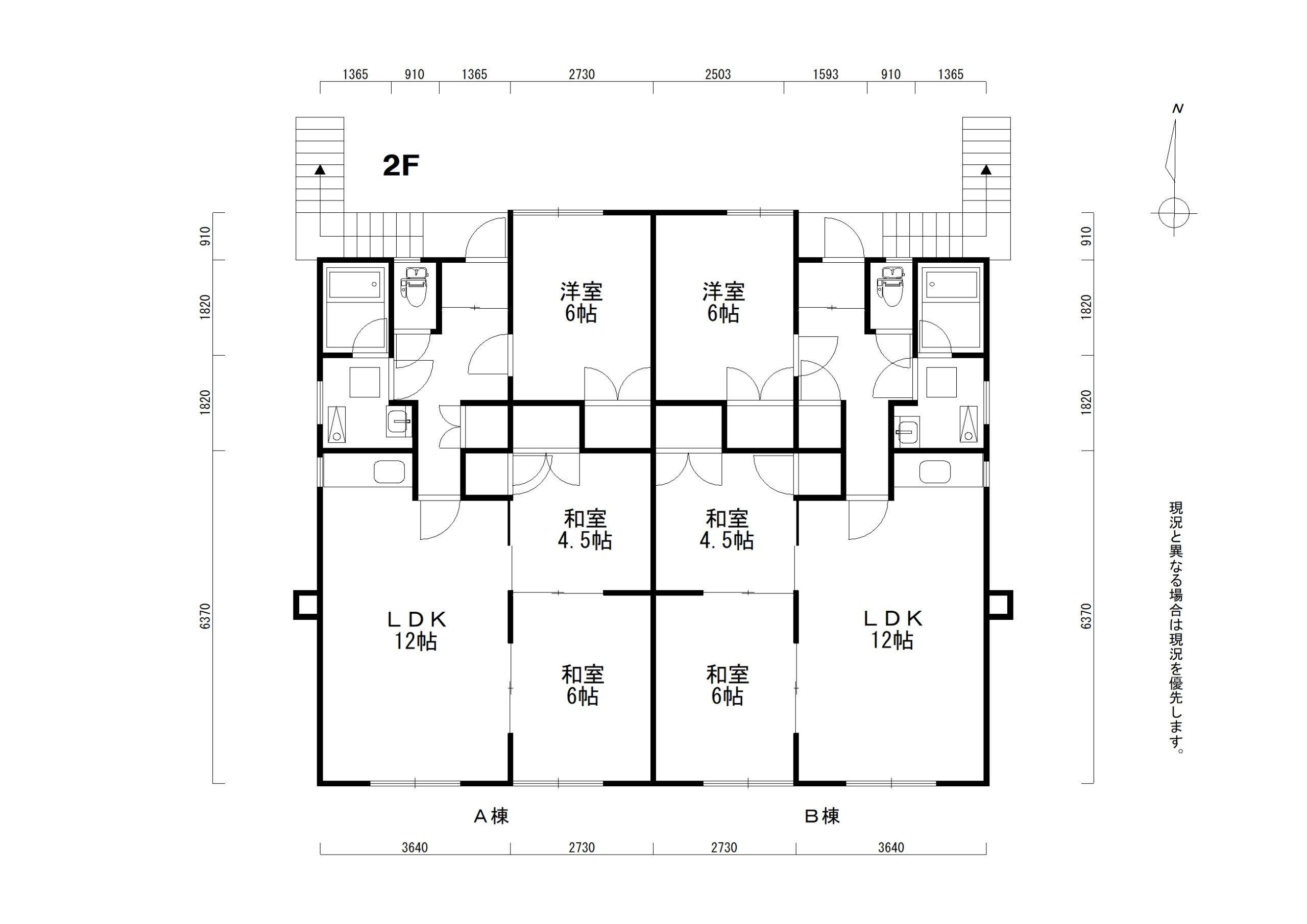
物件名 フラットN11
売出価格 750万円
土地365万円 A棟196万円 B棟189万円
旧価格880万円(土地365万円 A棟206万円 B棟309万円)
旧価格広告期間:R7/10/17~R8/3/16
A棟 築36年 1F3LDK入居中 2F3LDK 空室
B棟 築32年 1F空室 2F3LDK 空室
土地176.96坪
物件前駐車場 4台
B棟側 最大3台 縦列駐車可
令和8年度 紋別市 空き家に関する補助制度
クリックすると紋別市のページに移動します
令和8年度 空き家の取得・改修の補助金は昨年度の基本額75万円から100万円へ拡充され、加算額適用の場合は最大200万円になりました。B棟(1F2F)を全てマイホームとして利用する場合、補助対象になるか否かにつきましては、買主様の申請手続きと市の審査によります。補助金制度の概要・申請手続きに関することは紋別市役所4F 住宅政策・管理担当にお問い合わせください。
R7年4月から入居者募集停止中
A棟からの家賃収入
満室時 想定年間家賃 110万4000円
(平均家賃4.6万円のとき)
B棟はマイホーム改修向き
購入者様のお考えによりB棟賃貸可
未点検未修理のうえ全て現状渡し
現況と異なる場合は現況を優先
クリックすると拡大図
拡大後 画面下◀ボタンで戻る
A棟1階入居中 2015年以前の画像
指(マウス)で左右にスライド表示
2本の指でつまんで広げると拡大
A棟2階空室 2025年7月現在
R4年リフォーム・クロス・キッチン・LDKフローリング・ユニットバス・灯油ボイラ・シャワー付洗面台・洗浄機能付トイレ・LEDリモコン照明・灯油ストーブ・TVドアホン取付
B棟1階空室 2025年9月現在
マイホームや二世帯住宅として
賃貸も可能ですが、用途制限違反や駐車場の問題に留意する必要があります。
B棟1階空室 その他
指(マウス)で左右にスライド表示
2本の指でつまんで広げると拡大
B棟1階の主な劣化箇所
B棟1階の洗面脱衣室の床全体にはクッションフロアの汚損、剥がれ、腐食が原因と思われる床板の撓み(床としての強度低下)、見えない床下にも木部の腐食が生じている可能性があります。洗面脱衣室は要点検・要修繕。洗面脱衣室ドアやトイレドアの建付が悪く、調整または修繕が必要です。玄関ドアノブに浮きサビがあります。
リフォームの請負・紹介は不可
B棟2階空室 2025年7月現在
敷地と敷地駐車場 2025年6月下旬撮影
イエローラインは境界イメージです。全ての境界に境界標が埋設されています。※令和7年9月24日実測図作成・代金決済引渡し時に買主様に交付します。
その他の敷地画像
指(マウス)で左右にスライド表示
2本の指でつまんで広げると拡大
マイホーム兼賃貸アパートとして低金利住宅ローンをご利用するとき
■ご予算に応じた住宅ローン返済例
購入価格+購入諸費用+リフォーム費用
1400万円 月々返済額 52,762円(25年返済)
1700万円 〃 64,068円(25年返済)
2100万円 〃 67,544円(30年返済)
※ボーナス払なし・3年金利特約1.0%(併用住宅)・元利均等返済のとき。
個人向け併用住宅ローン(1.0%~)または事業用融資(3.6%~)・融資の可否・適用金利・借入限度額・返済期間等はお客様の事情と融資機関様の判断によります。
一定期限までに建築業者様の選定やフォーム見積書取得の見通しを立てられないときは、住宅ローンを利用または自己資金で本物件を購入し、物件取得後にリフォーム工事やリフォームローン利用をお申込みください。
一定期限とは売主様の承諾により最大4週間程
■住宅ローン減税
減税対象の借入金は確定申告によりマイホームとして使用する部分の面積割合その他により国税庁が判定します。
住宅ローン減税の適用を受けてから新たにリフォームローンを利用する場合も確定申告と国税庁の判断により住宅ローン減税を受けられる可能性があります。
| フラットN11の活用例と収益性 近年は新築工事費が高騰し、坪単価は100万円とも言われる時代になりました。マイホーム取得と家賃収入の観点からフラットN11の購入を検討されては如何でしょう。 アパート経営には副業的な家賃収入・物価上昇時は家賃も上昇・住宅ローンを利用しながら自己の資産形成・安定収入によるライフスタイルの多様性・将来的な売却の可能性などのメリットがあるとされる一方、家賃や金利の変動・定期的な維持管理・不測の修繕・様々な賃貸借トラブル・空き室による家賃収入減少等のリスクをよく検討する必要があります。 | |
| ■B棟をマイホームにしてA棟2室を賃貸する場合 A棟の借主様が利用できる駐車場の台数や利便性は賃料設定に影響する重要な要素と考えられます。B棟自宅駐車場とA棟駐車場の利用区分(場所)にご留意ください。 | ■A棟2室平均家賃46,000円のとき、満室時の年間家賃収入は11 0万4000円 例:1F家賃4.2万円無料駐車場1台付。2F家賃50,000円無料駐車場2台付の場合 |
| ■全棟4室をアパートとして賃貸借する場合 3LDKアパートの健全経営は少なくとも2台の駐車場が望ましいです。駐車環境の利便性(駐車台数・縦列駐車が無いなど)はアパート経営に影響する重要な要素です。 | ■A・B棟4室平均家賃42,000円のとき、満室時の年間家賃収入は201万6000円+α 例:家賃4.2万円×4室 無料駐車場1台付。駐車場の空き状況により有料駐車場代は別途設定など。 |
| 4室賃貸借の例は無料駐車場1台付家賃を42,000円に抑え、無料駐車場1台付で足りる需要に対応。駐車場に空きがあれば、その利便性と3LDKの付加価値を考えた駐車料金を設定する考え方です。ただし実際の家賃設定はオーナー様の経営判断により定めます。家賃は駐車環境・物件状態・住宅設備のグレードによって変動すると考えられます。 私共が本物件賃貸借の媒介の依頼を受けた2006~2025年まで家賃4.5~5万円で入居者を募集。この間、空室になった場合でも入居者募集開始からおよそ3ヶ月以内に次の借主様が入居を開始。良好な入居を維持した理由として、貸主様(売主様)による賃料設定・適切な賃貸借の管理や退去後のメンテナンスのほかB棟1Fは空室のため、借主様用の駐車場に充当できたことが考えられます。 私共は賃貸物件の管理業務を行っていないため、物件購入後、他の宅建業者様にアパート管理や入居者様の斡旋を依頼することは可能です。この場合は物件取得後、買主様にて直接、宅建業者様にご依頼ください。 | |
■B棟1F2Fをマイホームにリフォーム
快適性・断熱性・防音性の向上など、ご予算に応じて多様なプランがあると考えられます。
・1Fおよび2Fのメゾネット化
1階内部に階段を新設
・ご家族の2世帯住宅として
既設の屋外階段を利用
売主様の説明より1F天井と2F床の間には防火対策上の鉄板と厚さ5cm程度のコンクリートを敷設しています。
新築工事費が高騰しました
既存住宅をリフォームしては如何でしょう
以下の建築単価は秀研不動産が住宅金融支援機構ウェブで公表する全国の建物新築資金(集計上の種別:注文住宅)データのうち北海道の建物建設費を住宅面積(㎡)で割り、坪単価に換算したもの。2011~2024年データ 令和7年9月26日 紋別市 秀研不動産調べ
同機構による調査の概要より:※建築費とは主体工事費・主体工事に付随する電気・給排水・ガス設備・太陽熱温水器の各工事費・設計費・工事監理費・除却工事費・屋外附帯工事費・その他必要な費用の合計額(予定)※注文住宅とはフラット35で借り入れ、かつ土地取得費をフラット35で借り入れていないもの(土地取得費をフラット35以外で借り入れているものを含む。)を対象とする。
物 件 場 所
| 価 格 | 750万円 内訳:土地価格365万円 A棟196万円 B棟189万円 旧価格880万円(土地365万円 A棟206万円 B棟309万円)・広告期間:R7/10/17~R8/3/16 |
| 所在地等 | 土地:紋別市大山町2丁目30番55、30番57 建物:紋別市大山町2丁目30番地55 住居表示:紋別市大山町2丁目25番22号 紋別バスターミナル2.5km イオン紋別店1.4km 曽我クリニック・武田医院1.7~2.0km 紋別小学校1.71km 紋別中学校1.25km |
| バス停/学区 | ホワイトタウンバス停(大山町2) 徒歩2分 / 紋別小学校 紋別中学校 |
| 建物面積 | 建物の名称 フラットN11 A棟1F66.08㎡ 2F66.08㎡ / B棟1F66.08㎡ 2F66.08㎡ 合計264.32㎡ 79.95坪 |
| 構造/築年月 | A棟木造2階建 共同住宅 平成元年12月新築 / B棟木造2階建 共同住宅 平成6年9月新築 |
| 間取/駐車場 | A棟:1F3LDK入居中(家賃4200円)、2F3LDK:R7年3月より空室・入居者募集停止中 B棟:1F料理教室 空室・2F3LDK:R7年6月より空室・入居者募集停止中 駐車場:有(未舗装) |
| 建築確認 | A棟新築:確認済証(旧確認通知書・建築図面)の保有:有、検査済証の保有:有 B棟増築:確認済証(旧確認通知書・建築図面)の保有:有、検査済証の保有:無 未検査 |
| 融資利用 | マイホーム兼賃貸アパートを低金利住宅ローンでお借り入れするとき 購入資金の融資申込先 要相談 団体信用生命保険+ガン診断一時金特約付に加入するなど一定の条件を満たすとき 3年特約金0.9% 5年1.15% 10年1.3% 保証料一括払。詳しくはご紹介する融資機関様にてご確認して頂きます。 個人向け住宅ローンまたは事業用融資の別・融資の可否・借入限度額・適用金利・返済期間等はお客様の事情と融資機関様の判断によります。 |
| 土地面積等 | 2筆合計585.01㎡ 176.96坪 (実測面積584.95㎡)/ 地目:宅地 / 土地権利:所有権 |
| 都市計画等 | 第一種低層住居専用地域 建ぺい率40% 容積率60% |
| 接道状況 | 北側 幅15mの公道に21.37m |
| 後退制限 | セットバック 無 |
| 私道負担 | 無 |
| 設 備 | 公営上下水 PLガス 北電 |
| 媒介報酬 | 取引態様:媒介 / 285,000円税別 ただし取引価格や依頼される媒介の内容に応じて報酬額はa~dの何れかにより定めることがあります。 a.取引価格150万円以下 9万円 税別 b.取引価格150万円超~500万円以下 取引価格×6% 税別 c.低廉な空き家等の売買又は交換の媒介における特例による約定報酬(800万円以下 限度額30万円 税別) d.a~cによらず原則の報酬規定 |
| そ の 他 | 現在継続中の建物賃貸借契約は代金決済と引き換えに物件の引渡しと売主様が保有する賃貸借契約書の原本を買主様(新貸主)に譲渡することにより行われ、買主様は当該賃貸借の権利と義務を継承することになります。 |
| 引 渡 し | 代金決済時 |
| 現 況 | 全4室中 1室のみ入居中(月額賃料42,000円・無料駐車場1台付) |
| 広告月日 | 令和8年3月17日更新 |
| 購入費用 | 売買価格750万円の場合、売買価格のおよそ8.4%が目安です。 不動産売買契約書印紙代・固定資産税清算金・所有権移転登記費用・不動産取得税・媒介報酬。ただし媒介報酬は成約価格により変動 |
| 融資費用 | くわしくは申込先の融資機関様にてご確認して頂きます。 金消契約書印紙代・事務手数料・保証料・団体信用生命保険料・火災保険料・抵当権設定登記費用など |
